Ни одна кухня не обходится без штор. Их, конечно, можно купить готовыми, но особое удовольствие приносят изделия сшитые собственноручно. В таком деле не должно быть излишества и пестроты. Необходимо добиться сочетания красок и практичности. Шторы могут быть, как простыми классическими, так и трудоемкими с ламбрекенами. В ход идет шелк, хлопок, поплин, тюль и органза, а также их сочетание и контраст.
Содержание статьи
- Красивые шторы на кухню фото
- Как сшить ламбрекен для штор своими руками, выкройки пошагово с фото
- Шторы арка для кухни своими руками: выкройки пошагово с фото
- Шторы на кухню на окно с дверью: варианты современных штор, выкройки
- Шторы на маленькое окно кухни: выкройки, подробно с фото
- Шторы на кухню короткие из тюля: выкройки, мастер класс с фото
- Шторы на кухню в стиле прованс: выкройки с фото
- Дизайн штор для кухни в современном стиле: выкройки с фото
- Французские шторы на кухню: выкройки с фото
- Дизайн штор для маленькой кухни: идеи штор с выкройками
- Дизайн штор для классической кухни: выкройки с фото
- Шторы на кухню на одну сторону: выкройки с фото
- Шторы на кухню два окна: выкройки с фото
- Шторы для кухни из вуали: фото
- Шторы для кухни из органзы: фото
- Шторы на кухню пошагово своими руками
Красивые шторы на кухню фото
Прежде, чем остановиться на какой-то конкретной модели штор, необходимо учесть следующие факторы:
- внутренний дизайн кухни, чтобы изделие удачно дополняло интерьер.
- количество солнечного света. Если окно затеняют деревья, модель выбирают светлых тонов, предпочтительно из тюли или органзы.
- расположение мойки под окном требует коротких занавесок.
Главное в выборе штор для кухни – это удобство и практичность.
Для маленьких помещений лучше пошить короткие занавески, до подоконника или середины окна. Особенно это касается тех случаев, когда подоконник служит рабочей зоной. Лучше остановить свой выбор на прилегающих к стеклу моделях: римских, рулонных или шторах-жалюзи.
римские шторы на окно на кухню

Шторы-жалюзи на окно на кухню

Шторы классические на кухню
Классическая модель из двух портьер по сторонам и гардины будет хорошо смотреться на большом окне. Для крепления шторок применяют люверсы, петли и банты.

штора на кухню на одну сторону фото
Классическую модель слегка изменяют для маленького пространства, например, цепляют одну портьеру или подбирают два скрещенных полотна на карниз.

современный дизайн штор для кухни фото
Оригинальность в интерьер внесет единство расцветки штор и отделки стульев, скатерти или подушек на уголке.

шторы стиль прованс для кухни
Новинкой является стиль штор в «образе кафе», когда на середину окна крепят поперечную планку для двух коротеньких штор, а верх окна украшают ламбрекеном.
Оформление окна в стиле Прованс — это сочетание гармонии и практичности.

шторы для кухни с балконом фото
Интересная идея шторы с разрезом, когда при открытии двери на балкон основной декор остается нетронутым. А карнизы располагают асимметрично, чтобы обыграть дизайн интерьера.

Этно стиль базируется на простом крое. Достаточно выкроить по размеру окна прямоугольные полотнища и простой ламбрекен в виде прямоугольника. На деталях предусматривают припуски на швы.

Для эркеров приемлемо правило: для маленьких окон подойдут римские шторы, для проема во всю длину стены – портьеры.

шторы английский стиль
Шторы в английском стиле внесут в интерьер одновременно аристократизм и строгость. Они состоят из прямоугольного полотнища, в котором специальные шнуры образуют в нескольких местах волнистые складки. Такие модели не шьют ниже подоконника.

Как сшить ламбрекен для штор своими руками, выкройки пошагово с фото
Декорирование окон ламбрекенами не только украсит в кухню, но и скроет от посторонних глаз карниз и крепления. Изделие может быть простым, мягким, жестким, комбинированным и фигурным. Для пошива ламбрекена используют полотнища прямоугольной или фигурной формы, а декорируют их бантами, лентами и бахромой. Для ламбрекенов подойдет атлас, шелк, вуаль, полиэстер, лен и даже бархат.

Для начала необходимо выполнить следующие действия:
- снять размеры окна;
- определиться с моделью;
- сделать эскиз;
- определить насколько ламбрекен должен прикрывать окно;
- вырезать выкройку;
- приступить к шитью.
Для карниза длиной 180 см необходимо:
- двухцветная вуаль, например, кремовая и белая;
- 9 люверсов;
- косая атласная бейка.
Ход работы:
- Из кремовой вуали вырезают прямоугольник 45х404 см. Бока и низ обшивают косой бейкой. Трапецию с вытянутым углом, размером 202х45х100 см, делают из белого материала. Три края, кроме верхнего, также обрабатывают бейкой.

- Сложенные вместе две заготовки, соединяют по верху. Края оверлочивают, а затем подгибают и прошивают.

- Ламбрекен выворачивают и разглаживают. Поверху, отступив 1 см от верхнего края полотнища, делают отметки для люверсов. Сложив заготовку пополам, отмечают центральное крепление, а затем на расстоянии 40 см размечают остальные.

- Крепят ламбрекен к карнизу завязками из бейки. Ее продевают сквозь люверсы и петлями вяжут к карнизу.

Шторы арка для кухни своими руками: выкройки пошагово с фото
Арочные шторы отличаются дугообразной формой и свисающими краями. Такие модели идеально подходят для маленьких пространств, особенно в случае подоконника-рабочей зоны. Занавески часто используют для классического и деревенского стиля. Штора в виде арки должна драпироваться, поэтому для нее берут полупрозрачные ткани: тюль, органза, вуаль. Для пошива подойдет материал шириной не менее 100 см, но при этом учитывают размеры окна.
Цвет арочной шторы может дополнять оттенок кухонного текстиля.
Вариант №1 Арка классическая
- Чтобы вырезать полукруг, ширину окна делят на три. Это и будет радиус.
- Материал складывают пополам и вырезают полукруг согласно выкройки. Его края закрывают тесьмой.
- Длина шторы измеряется двумя способами: высота окна умножается на 2 + 2 r или высота окна + подвес + 8 см.
- С обеих сторон полотна отрезают прямоугольники, основа которых равняется 1/5 ширины окна.
- Поверху пришивают тесьму или липкую ленту.

Вариант №2 Штора с узорчатым низом
В этом варианте рассмотрим, как сшить арку, чтобы сохранить нижний рисунок тюли. В таких случаях полукруг делают сверху.
- Для начала измеряют габариты окна и делают прямоугольную заготовку, не забыв о припуске на швы.

- Складывают материал пополам и вырезают арку, оставив 50-60 см по бокам. Полукруг должен быть плавный.
- Бока подшивают, а верх подгибают и закрывают стягивающейся тесьмой.

Вариант №3 Штора из поплина
В этом варианте полукруг также делают сверху. Чтобы штора имела ниспадающие воланы, ткани для арки берут в 2 раза больше ширины карниза. Прямоугольное полотно складывают вместе лицом к лицу. По бокам оставляют около 20 см. 1/3 полотна отмеряют прямо, а затем 2/3 под уклоном соединяют с боками.

Крепить арочную штору можно при помощи ленты, люверсов и петелек.

Шторы на кухню на окно с дверью: варианты современных штор, выкройки
Иметь на кухне окно с дверью на балкон выгодно, но подобрать для такой модели штору немного проблематично. При выборе следует учесть, что дверь будет неоднократно открываться, а хозяева будут выходить на балкон. Для таких окон стараются не использовать громоздкие, тяжелые шторы и повреждаемые материалы. Готовые модели вряд ли можно подобрать, ведь окна в домах нестандартные. Приведем три варианта с выкройками, которые хозяйка сможет сшить самостоятельно.
римские шторы на окно на кухню

Зачастую кухонная дверь открывается вовнутрь, поэтому лучше завесить многофункциональное окно римской шторой. Она будет плотно прилегать к стеклу и не мешать при ходьбе.

шторы для классической кухни
При желании половину окна можно прикрыть прямоугольной шторой до пола, но ее прихватывают по краям тесьмой или цепочкой. Такая модель подойдет для больших пространств.


Комбинированная штора из тюли, которая дополнена свагом.

Шторы на маленькое окно кухни: выкройки, подробно с фото
Главное требование к шторам маленькой кухни – это визуальное расширение пространства. При выборе тканей для малогабаритных кухонь отдают предпочтение натуральным основам, ведь зачастую рядом с окном располагают плиту. Дизайнеры останавливаются на подъемных шторах: австрийских или рулонных.
австралийские шторы

Австралийские шторы выделяются ровным полотном, книзу которого сформированы фестоны. Их высоту регулируют. Для пошива используют тафту, атлас или микровуаль. Воланы собираются при помощи шторной тесьмы, а украшаются цветами и бантами. Для маленьких пространств останавливаются на светлых тонах.
Ширину материала определяют умножением на две ширины карниза. Затем полотно делят на количество необходимых складок, примерное расстояние между которыми 30-60 см.

Пышные воланы на арочной шторке внесут уют в маленькое пространство.

Ход работы:

рулонные шторы на пластиковые окна на кухню
Рулонные шторы занимают минимум места и не перегружают пространство. Они фиксируются лентами, а держатся на штанге, которая служит утяжителем. Штору можно закрепить на самом окне или карнизе.

Шторы на кухню короткие из тюля: выкройки, мастер класс с фото
Короткие шторы не только защищают кухню от солнечного света, но и придают хозяйке меньше забот с уходом. Они менее пожароопасные и не мешают процессу приготовления.
Подобные модели необходимы:
- для маленьких пространств, ведь тюлевая штора придает легкость и увеличивает объем кухни.
- не препятствует свободному доступу к подоконнику, даже в закрытом положении.
- подходит для окон с дверью на балкон.
Если говорить о коротких шторах, то нет единого мнения, какая именно длина должна быть: достигать середины окна, подоконника или короткий ламбрекен до 50 см шириной.
шторы с кулиской

Такая модель затягивается по диагонали шторной лентой и собирается с одной стороны окна.

арочная штора для кухни


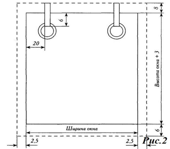
шторы на кухню на люверсах: мастер класс с фото
Штора из тюля крепится на люверсы, создавая при этом красивые волнистые складки.
Для ее пошива необходимо:
- размер тюли равняется ширине карниза умноженной на 2,5;
- отделочная манжетная ткань (ширина 25 см);
- лента люверсная;
- люверсы 8 шт.

Примерная таблица количества петель для определенной ширины окна, а также примерное расстояние между креплениями.
Подробная выкройка

Для начала отрезают тюль согласно выкройки. Чтобы убрать лишнее, достаточно вытянуть нить и обрезать по ней. Боковые срезы закрывают.
Посредине отделочного манжета проводят мелом штрихи, по которым прокладывают ленту. С помощью проутюжника приклеивают ее к манжете, перегибают и снова проутюживают. В средине отмеряют припуск для шва, который также фиксируют утюгом.

Машинкой прострачивают края манжеты, кроме нижнего, и выворачивают на лицо. Полученную деталь проутюживают.

В манжету помещают тюль, пришивают и проутюживают. От верхнего края манжеты, оставив 4 см, намечают точки для люверсов. Прикладывают крепления и обводят их контур. Вырезают по границе люверса, оставив на 2 мм больше ткани.

Одну часть люверса подкладывают под низ и прищелкивают верхом. Штора готова, можно крепить на карниз.

Шторы на кухню в стиле прованс: выкройки с фото
Стиль прованс веет простотой и уютом. Обычно он включал в себя два прямоугольных полотнища на кулиске с «гребешком». Их декорируют оборками и подхватывают по бокам лентами и шнурами. Современный дизайн добавил к деревенскому стилю петли, ламбрекены, бантовые крепления и пуговицы. Два полотна крепятся на карнизе или в проеме окна.
Вариант №1 Штора с ламбрекеном
Для стиля характерна фактура с маленьким букетиками роз или лаванды, которые растут на юге Франции.


Вариант №2 Оливковый ансамбль
Иногда проем окна закрывают полотнищем из тюля и сверху широким ламбрекеном. Цвет материала выбирают неяркий, обычно оливковый или пастельный. Пример оливкового ансамбля с цветастым тюлем.


шторы на кухню стиль кантри
Такая модель состоит из традиционных штор-кафе и верхнего прямоугольного ламбрекена. Оттенок штор должен перекликаться с тоном домашнего текстиля. Выкройка дана с разной степенью полноты волана.

Дизайн штор для кухни в современном стиле: выкройки с фото
Современные кухонные шторки чаще всего выполняются в эко стиле с применением натуральных материалов или в фьюжн стиле, когда сочетается несочетаемое.
Вариант №1 Итальянская классика
Модель простой шторы с императорской удачно соединена в итальянской шторе. Такие модели драпируют подхватами. Она может полностью закрыть оконный проем или подниматься с помощью шнурка, пропущенного с изнанки через кольцо.

Вариант №2 Модель «Травинка» на штангах
Приведенный ниже вариант шторы универсален. Он подойдет как для большого, так и маленького пространства. Сшить его легко, ведь обе части аналогичны друг другу, различие лишь в их длине. Крепятся шторы прямо на окно с помощью железных штанг.

Выкройка приведена для окна размером 100х120 см. Люверсы расположены на расстоянии 16 см.

Вариант №3
Подборка современных занавесок и тюли для кухни 2018 года.
Французские шторы на кухню: выкройки с фото
Французская модель штор наиболее помпезная. Она дарит воздушность и изысканность. Для пошива применяют легкие, струящиеся ткани, а украшают их бахромой, рюшами и кистями. Обычно такие модели обрамляют двухсторонними портьерами.

Выкройка базируется на вертикальных направляющих, в которые продевают стягивающую тесьму.

Вариант №2 Когда в одной модели скомбинированы два оттенка тканей.

Два варианта эскиза французской шторы. Одна декорирована воланами, другая классическая с кисточками.

Пример, когда воланы и кисточки совмещены на одной шторе.

Дизайн штор для маленькой кухни: идеи штор с выкройками
Визуально увеличивают пространство струящиеся модели светлых оттенков. Для расширения пространства применяют классические или асимметрические шторы.
От рюшей и воланов в малогабаритных кухнях лучше отказаться.
Преобразить кухню и скорректировать помещение при неправильном размещении окна можно при помощи асимметрических штор.


Прилегающие к окну римские шторы – отличный выбор для «хрущевки».
Элементы шторы

Вид шторок, который внесет уют в интерьер малогабаритной кухни – излюбленные многими арочные модели. Для их пошива подойдет любой вид и расцветка ткани.

Несколько вариантов выкроек кухонных арок.

Дизайн штор для классической кухни: выкройки с фото
Для классических интерьеров выбирают шторы из натуральных материалов и останавливаются на простых моделях. Это могут быть занавески на люверсах, завязках, липучках и петлях.
Модель на петлях из легких материалов, которая открывает зону подоконника.

Выкройка на размер окна 150х140 см.

Для классики уместны также пышные ламбрекены.

Яркий комплект классических штор на люверсах с римской моделью.

Карниз крепится на высоте 250 см от пола, размер выкройки дан для окна 115х90 см.

Шторы на кухню на одну сторону: выкройки с фото
Односторонние модели позволяют хозяйке полноценно выполнять домашнюю работу, давая доступ к подоконнику. Такие модели применяют для окон с дверью или, когда рама расположена в нестандартном проеме.
Одностороннее полотно удачно скрывает огрехи помещения.
Штора на люверсах, повешенная без карниза.


Односторонняя шторка с оборками, подхваченная бантом.

Угловая штора

Практичная штора с углом часто используется в дизайнерских решениях, когда необходимо обыграть подоконник.

Шторы на кухню два окна: выкройки с фото
Двойные шторы часто встречаются в угловых кухнях. Их оформляют в одном стиле, например сочетание тюли и классических портьер.

Выкройка для окна размером 115х90 см, высота от карниза 250 см.
Когда два окна близко размещены друг с другом, их оформляют, как одно целое. Одним из лучших вариантов декора двойных окон есть рулонные шторы.


Воздушные французские шторы уместны для разных типов окон.


Шторы для кухни из вуали: фото
Из-за нежности и легкости вуаль часто применяют для кухонных штор. Она хорошо пропускает свет и является довольно «послушной».

Ткань не перегружает интерьер, но выглядит очень нарядно.

Вариант из двух треугольников, которые заходят друг за друга.

Ткань для пошива должна быть без лицевой и изнаночной стороны.

Шторы для кухни из органзы: фото
Органза – довольно популярный материал для пошива кухонных штор. Она различается по степени прозрачности, цветовой гамме, матовости и рисунку. Органза считается капризным материалом, так как на ней видны любые неровности и огрехи.
В целях безопасности штору из перекрученных волокон шелка не располагают вблизи плиты.
Легкие классические шторы из органзы на подхватах.

Рулонные шторы также могут быть на основе органзы.

Вариант шторы из органзы с вышивкой для большого окна.

Шторы на кухню пошагово своими руками
Стильные римские шторы для кухни можно быстро сделать самим из старых жалюзи. Достаточно приготовить:
- ткань;
- ленту «паутинка»;
- специальный клей для ткани;
- жалюзи.

Согласно размера окна подбирают жалюзи. Удаляют шнур, который отвечает за поворот планок. А вот тот, что поднимает механизм, сохраняют.

На расстоянии 25 см оставляют по одной планке, а остальные убирают, сняв ножом нижние колпачки.

Отрезают ткань по размеру жалюзи, оставив по периметру 5 см для подгибов. Ткань подворачивают и проутюживают.

Подгибы приклеивают до ткани «паутинкой». Основу прикладывают к карнизу и отмечают на ней карандашом расстояние оставленных пластин.

Лицевую сторону устройства промазывают клеем, а затем к ней плотно прижимают ткань. Желательно, чтобы материал немного выступал за верхний край. Нижнюю планку оборачивают тканью и фиксируют клеем.

Штору оставляют для просыхания, а затем монтируют к раме стандартными креплениями от жалюзи.

Штора в открытом виде

Закрытый вариант окна.

Какой вариант штор выбрать для своей кухни, решать самой хозяйке. Главное — учесть все пожелания, интерьер кухни и расположение окна.


2 комментария
Хорошая и подробная статья, прочитав ее сшила штоы на кухню себе и дочери, спасибо!
Очень интересная статья, все понятно. Спасибо!