Все мы любим домашних питомцев. Кроме собак и кошек в домах заводят попугаев. Птицы радуют своим щебетанием и ярким оперением. Но птице нужен уютный домик, а именно клетка. О том какими они бывают и как можно своими силами ее смастерить расскажем далее.
Содержание статьи
- Клетки для попугаев фото
- Размеры клетки для попугая
- Как сделать клетку для попугая своими руками, из чего можно сделать клетку
- Материалы и инструменты для работы
- Клетки для попугаев своими руками, размеры и чертежи
- Мастер класс клетка для попугая своими руками
- Видео клетка для волнистого попугая своими руками
- Как обустроить клетку для попугая, фото
- Как обустроить клетку для попугая своими руками
Клетки для попугаев фото
Клетки могут быть разными. Так для маленьких представителей данных птиц подойдет небольшая клетка из пластика и металла. Простая прямоугольная форма и отсутствие лишних деталей. Жердочки для птиц расположены на разной высоте, что предоставит попугаю передвигаться по ним. В нижней части клетки по одной из сторон находятся кормушка и поилка. Поддон из пластика легко вытаскивается, благодаря чему уход за клеткой прост.
Еще можно подобрать птичке округлую клетку. Винтажный облик, простота форм делают ее универсальной. Для развлечения птице можно добавить качели, жердочки и прочие аксессуары. Кроме того такую модель можно повесить или расположить на подставке.
Для крупных представителей папугаев предназначены большие клетки, практически вольеры. Они сделаны из металла. В такой клетке предусмотрено несколько ярусов и большая дверка. Кроме того между площадками находятся планочки и лесенки, это предоставит птице свободу передвижения и фантазии. Сверху на клетке могут располагаться разные приспособления. Например, длинная жердь и закрепленные на ней мисочки. Владелец может попробовать разучить со своим попугаем несколько трюков.

Размеры клетки для попугая
Клетка это дом попугая и от ее размеров зависит качество его жизни. Важным нюансом является размер клетки. Рассмотрим определение размера на примере волнистого попугая. Сидя в клетке птица должна иметь возможность расправить крылья, а в идеале совершать короткие полеты.
Поэтому при подборе клетки учитывают следующее:
- сидя по центру жердочки должен свободно расправить свои крылья и махать ими не касаясь стенок клетки;
- в домике должно быть минимум две жердочки, причем попугай должен свободно перепархивать с одной на другую, а сидя на перекладине не касаться хвостиком прутьев;
- самый маленький размер клетки для волнистого попугая это длина 40 см, высота 30 см и ширина 25 см;
- если вы завели пару птичек то клетка нудна побольше длина 60 см, высота 40 см и ширина 30 см;
- при большем количестве птиц размер клетки увеличивается исходя из приведенных выше пропорций.
В просторной клетке птица будет чувствовать себя комфортно, что благоприятно отобразится на ее развитии и здоровье.

Как сделать клетку для попугая своими руками, из чего можно сделать клетку
Клетку можно сделать и самостоятельно учитывая некоторые факторы:
- вид попугая, чем крупнее птица тем просторнее клетка понадобится;
- возраст, молодая птица быстрее привыкнет к новому жилью даже меньшего размера;
- времяпрепровождение, если вы предоставляете попугаю возможность летать по дому, то слишком просторная клетка не нужна, ему и так хватает движения;
- необходимо учесть все привычки и предпочтения питомца, чтобы наполнить новую клетку аксессуарами.
После необходимо сделать чертеж будущей клетки. Для этого нужно учесть все конструктивные особенности:
- основанием служит поддон, который задает форму клетки. Можно воспользоваться готовым или сделать самостоятельно из фанеры. Стоит учесть бортики, не стоит делать их слишком низкими.
- каркасом для клетки может служить проволока и сетка. Первая позволяет придать любую форму благодаря гибкости. Сетка дает свободу движений и возможность наблюдать за окружающим миром.
- крыша. Ее можно сделать из листа фанеры или металла. Главное предусмотреть место для крепления ручки снаружи и для фиксации жердочки изнутри.
- аксессуары. В клетке помимо жердочки можно поставить лесенку, повесить качели или зеркальце. Даже расположить домик в который будет прятаться птица.
Учитывая все параметры, вы сделаете комфортное и интересное жилье для своего питомца.

Материалы и инструменты для работы
Прежде чем приступить к работе подготовим материалы:
- проволока;
- металлический уголок и профиль;
- дерево;
- ДСП или фанера;
- гвозди, саморезы.

Из инструментов пригодятся:
- кусачки;
- ножницы по металлу;
- ножовка по дереву;
- отвертка или шуруповерт.
Материалы для работы лучше выбирать экологически безопасные. Лучше не использовать пластик и окрашенные детали. Они могут выделять вредные вещества. Окрашенные прутья также не рекомендуются, т.к. попугаи могут обгрызать их. Для клеток можно выбрать дерево. Лучше использовать такие породы как ясень и дуб. Они устойчивы к влаге и очень прочные. Начинают делать клетку с рамы из дерева или металла, после чего обшивается.

Клетки для попугаев своими руками, размеры и чертежи
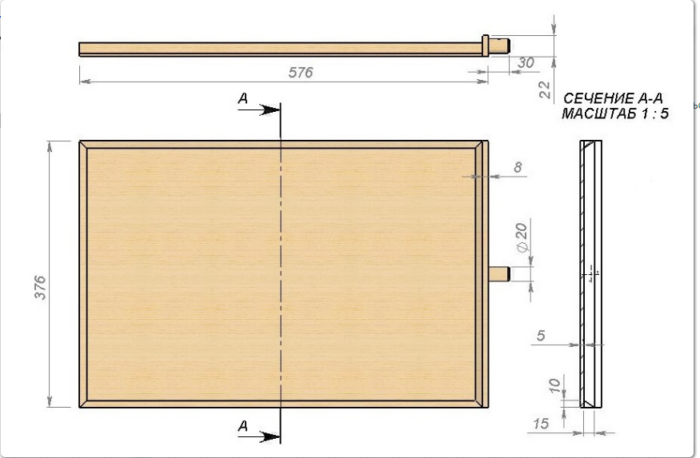
Чертеж клетки сделать несложно. Для этого достаточно сделать эскиз и перенести на бумагу его по отдельным частям прикинув их размеры. Рассмотрим на примере обычной клетки из дерева и прутьев. Начинаем с основания клетки размером 56,7х37,6 см.

Далее идут промежуточные планки. На рисунках ниже представлено схематическое изображение и как они будут выглядеть в клетке.

После этого необходимо изготовить верхнюю рамку.

Затем стоит позаботиться о дверных планках.
После сбора по представленным чертежам получится следующая конструкция.
Если вы захотите сделать клетку больше, на бумаге начертите эскиз и укажите желаемые размеры. После этого изготовьте отдельные элементы и соедините их.
Мастер класс клетка для попугая своими руками
Рассмотрим несколько вариантов клеток для попугаев. Самый простой это сделать ее из нескольких кусков ДСП и строительной сетки.
Сетка с размером ячеек 10х25 мм оцинкованная, довольно толстая. Обрезаем кусок сетки по длине дна будущей клетки.
Теперь прикладываем сетку к листу и карандашом намечаем места для отверстий у каждого прутика.
Теперь сверлим отверстия.
Наступает самый кропотливый этап, попасть проволокой в каждое отверстие.После этого протаскиваем сетку вниз до упора и торчащие концы проволоки загибаем с обратной стороны дна. Проделываем тоже самое еще с тремя стенками.
Теперь с внутренней стороны делаем бортики из узких полосок того же ДСП. Прикручиваем их саморезами или специальными мебельными болтами.
Теперь плоскогубцами скрепляем стенки клетки, закручивая между собой торчащие усики сетки.
Остается сделать крышу. Для этого можно положить сетку прямо и скрепить со стенками, или сделать полукругом. При этом фронтоны крыши закрывают кусками той же сетки, скрепляя ее с крышей и стенкой. Вот и получилась просторная клетка.
Рассмотрим еще один вариант клетки. Делают ее в несколько этапов:
- делаем поддон – фартук из листа ДСП и фанеры, периметр поддона состоит из бортика, низким его не стоит делать чтобы корм на рассыпался по комнате;
- далее из деревянных реек делают 3 рамки и с шагом 1 – 1,5 см сверлят в них сквозные отверстия;
- берем проволоку из нержавейки и продеваем в отверстия по всему объему;
- берем четвертую рамку в которую также вставлена проволока и накрываем стенки попадая проволокой в отверстия;
- закрепляем и на каждое ребро клетки крепим деревянный уголок, сверху прикрепляем два бруска друг напротив друга, они послужат ручками;
- остается сделать дверку, расположить ее надо снаружи и открываться она должна снизу вверх, для этого в деревянный брусок крепим проволоку и просовываем в паз, сверху крепим еще одну планку попадая прутьями в отверстия.
Таким образом мы получим клетку из натуральных материалов с дверкой, которую не сможет самостоятельно открыть умная птица.
Пожалуй самым простым способом сделать прямоугольный каркас из толстых реек. Внизу пропилить отверстия для поддона. А сам поддон можно сделать из тонкой фанеры. После этого берем строительную сетку и отрезаем кусок по высоте. Далее оборачиваем и закрепляем гвоздиками или саморезами. После из сетки вырезаем кусок по размеру верхней части и прикрепляем его. Остается сделать дверцу. Для этого в одной из стенок вырезаем квадрат. Все острые и торчащие части. По периметру получившего отверстия крепим тонкий металлический уголок. Кусочек сетки также отделываем планками. Теперь остается закрепить петли на дверке и установить ее на каркасе. Делаем крючок или щеколду для фиксации дверки в закрытом состоянии. Все готово, можно размещать аксессуары и запускать попугая в новый дом.

Видео клетка для волнистого попугая своими руками
В представленном ролике вы увидите как сделать клетку своими руками. Подробно узнаете о всех этапах работ.
Как обустроить клетку для попугая, фото
Попугай птица любознательная и умная. Чтобы разнообразить будни пернатому в клетке модно разместить различные аксессуары. Например, как на ниже приведенном фото. Жердочки из обычных веток расположены в разных частях клетки и на разной высоте. Внизу около них расположены поилка и кормушки. У верхней перекладины имеются две подвески с колокольчиками. Птице будет интересно заниматься с ними. Кроме этого в правой части расположено зеркальце, в которое попугай будет смотреться.
Крышу клетки тоже превратили в аттракцион. На ней расположили отдельные приспособления с подвижными частями. Вылетая из клетки птица сможет занять себя.
Еще в клетке можно расположить качели и лесенки. Птица с удовольствием будет раскачиваться под крышей своего дома и забавно бегать по лесенкам. Такая гимнастика пойдет на пользу попугаю.
Развлечения важны, но отдыхать тоже надо. Для этого можно поместить в клетку домик. Он может напоминать коробочку или иметь округлую форму. В любом случае птица будет чувствовать себя уютно.

Как обустроить клетку для попугая своими руками
Клетка для попугая есть, теперь встает вопрос о ее оборудовании. Первым делом необходимо разместить кормушку и поилку. Лучше всего приобрести их в готовом варианте, это так называемые автоматические модели. Удобны, т.к. позволяют насыпать сразу дневную норму корма.
После этого идут жердочки. Лучше всего деревянные. Не спешите их покупать, прогуливаясь в парке или просто проходя мимо дерева поищите подходящую. Дома снимите с нее кору и продезинфицируйте. Остается теперь поместить их в клетке на разных уровнях.
На качели тоже не стоит тратиться достаточно взять небольшую веточку и на концах сделать отверстие для проволоки. Далее берем прочную проволоку изгибаем ее аркой, а концы помещаем в сделанные отверстия. Аккуратно загибам концы и подвешиваем в выбранном месте.
Из старой детской погремушки можно сделать подвеску. Птица будет ее клевать или раскачиваться на ней, а издаваемые погремушкой звуки заинтересуют пернатого. Таким нехитрым способом вы обустроите клетку своему любимцу.
В данной статье рассказывается о самостоятельном изготовлении клеток попугаям и их обустройстве. Приняв к сведению приведенную информацию, вы будете знать из каких материалов и какого размера попугаю нужна клетка. Удачной работы.